Ogłoszeń: 2691   Czytających: 15903
Legniczka.com

Nowoczesna parterówka w stanie surowym - Jeżów

Telefon / kontakt:
Dodane:
wczoraj, 23:10
Jeżów Sudecki – nowoczesny dom parterowy w stanie surowym z widokiem na Karkonosze.

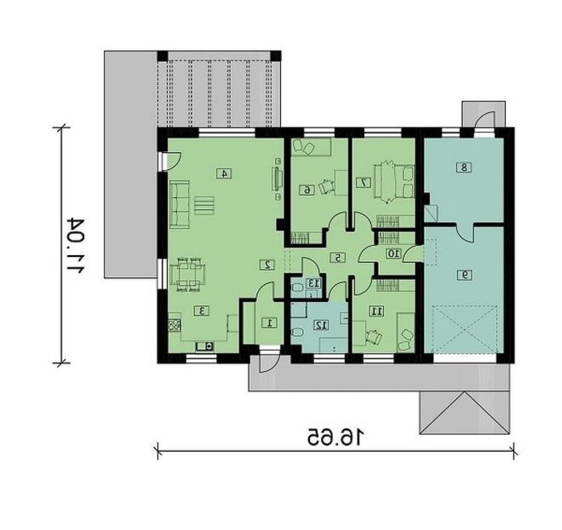
Biuro Nieruchomości Dębiec oferuje na sprzedaż dom jednorodzinny o nowoczesnej bryle, wybudowany w 2024 roku według projektu Ka-14-L. Nieruchomość o powierzchni całkowitej 150,91 m², z dodatkową przestrzenią strychową ok. 30 m², usytuowana jest na prostokątnej działce o powierzchni ok. 1092 m², co daje duże możliwości aranżacji ogrodu i strefy rekreacyjnej.

Budynek znajduje się w stanie surowym zamkniętym, co pozwala na swobodne dopasowanie wykończenia do własnych potrzeb. Konstrukcja została wykonana w technologii keramzytobetonowej, z dbałością o trwałość oraz parametry izolacyjne. Zastosowano m.in. ocieplenie TermPIR (12 cm), solidne fundamenty zabezpieczone styropianem oraz folią kubełkową, a także pełny drenaż odprowadzający wodę do studni burzowej.

Na uwagę zasługuje dach kopertowy pokryty ceramiczną dachówką Wienerberger Universo 10 z głębokimi zamkami oraz estetyczne, ocynkowane i malowane rynny. Stolarka okienna trzyszybowa zapewnia dobrą izolację termiczną, a garaż wyposażono w automatyczną bramę marki Krispol.

Układ pomieszczeń został zaprojektowany z myślą o wygodzie codziennego życia – wyraźnie oddzielono część dzienną z przestronnym salonem i kuchnią od strefy prywatnej z trzema sypialniami. Dodatkowo przewidziano zaplecze gospodarcze oraz garaż w bryle budynku. W projekcie uwzględniono ogrzewanie podłogowe zasilane gazem, a także miejsce na kominek – wykonano dedykowany komin z doprowadzeniem powietrza. Całość uzupełniają kominy z wkładami ceramicznymi oraz niezależna wentylacja.

Media zostały przygotowane w sposób umożliwiający sprawne doprowadzenie instalacji do budynku – gaz jest już doprowadzony, natomiast woda i kanalizacja pozostają do podłączenia. Prąd znajduje się na działce, z wykonanym przyłączem.

Lokalizacja to jeden z najmocniejszych atutów nieruchomości. Spokojna, rozwijająca się część Jeżowa Sudeckiego zapewnia szybki dojazd do Jelenia Góra, a jednocześnie oferuje otwartą przestrzeń i atrakcyjne widoki na Karkonosze, w tym Śnieżka oraz Szrenica. To dobre miejsce zarówno do życia na co dzień, jak i jako baza wypadowa w kierunku Karpacza czy Szklarskiej Poręby.

Oferta dla osób, które szukają nowoczesnego domu w spokojnej okolicy, z szybkim dostępem do miasta i jednocześnie blisko natury.

Cena: 1.080.000 zł

Polecam nieruchomość i zapraszam na prezentację!
Dawid Markiewicz
tel. 881-777-075

***Pomagamy w uzyskaniu korzystnego finansowania***

Treść niniejszego ogłoszenia nie stanowi oferty handlowej w rozumieniu Kodeksu Cywilnego. Treść ma charakter informacyjny i zalecamy ich osobistą weryfikację. Kontaktując się z biurem Klient wyraża zgodę na przetwarzanie danych osobowych zgodnie z przepisami ustawy z dnia 29 sierpnia 1997 roku o ochronie danych osobowych / Dz.U.Nr. 133 poz. 883/. Klientowi przysługuje prawo do wglądu do swoich danych osobowych i ich aktualizacji.
Nr ogłoszenia: 1865494 Ważne do: 2026-05-08 23:10:41

Inne ogłoszenia użytkownika

Więcej z kategorii Sprzedam dom

Janowice Wlk. Działka z małym domem do rem.
Janowice Wielkie. Działka gruntu o powierzchni 3055m2, pod zabudowę jednorodzinną , zabudowana drewnianym domem do remontu o pow. 65 m2. Trzy pokoje. Piękne, spokojne, słoneczne położenie. Doj
Sprzedam dom-wczoraj, 14:08
Domek w Podgórzynie
Polecamy cołoroczny, nowy domek o pow 70m2 z działkę 350m2. Urządzone i umeblowany. Ogrzewanie kominkowe. Piękne widokowe położenie na Zalew Sosnówka. ANRenoma
Sprzedam dom-19 kwietnia
Całoroczny domek w Podgórzynie
Nieruchomości Panorama prezentują Państwu na sprzedaż domek całoroczny położony w malowniczej części Podgórzyna. Dom o pow. 35 m2 składa się z: salonu z aneksem kuchennym, łazien
Sprzedam dom-22 kwietnia
Michałowice dwa domy - super cena 1.450.000zł
Biuro Nieruchomości Fankulewscy posiada w ofercie sprzedaży na wyłączność nieruchomość składającą się z dwóch domów posadowionych na działce o powierzchni 1925m2. Dwa dom wolnostojąc
Sprzedam dom-14 kwietnia
Dom z ogrodem w Kamiennej Górze, garaż
Sprzedam ładny dom wolnostojący w Kamiennej Górze o pow. całkowitej 230m2, pow. mieszkalna 165m2. Działka 2270 mkw. Dom do zamieszkania, po remoncie, parter: 5 pokoi, kuchnia, łazienka, pokoik
Sprzedam dom-15 kwietnia
Bliźniak na Osiedlu Łomnickim- 1.185.000,00zł
Biuro Nieruchomości Fankulewscy posiada w ofercie na WYŁĄCZNOŚĆ wyjątkową połowę domu w zabudowie bliźniaczej w Jeleniej Górze położoną na Osiedlu Łomnickim. Nieruchomość posadowiona
Sprzedam dom-14 kwietnia
Dom wiejski gmina jeżów Sudecki 260.000,-zł
Sprzedamy dom wiejski, pow. 130 m2, 5 pokoi, kuchnia, łazienka, CO-paliwo stałe. Działka 2491 m2. Cena: 260.000,-zł. Nieruchomości Karkonoskie tel. 601-55-64-94
Sprzedam dom-16 kwietnia
Dziwiszów- domek "ala" dworek 120m2-699tys.
Biuro Nieruchomości Fankulewscy posiada do sprzedaży w ofercie na wyłączność poniemiecki dom wolnostojący- MAŁY DWOREK w Dziwiszowie. Dom pochodzi z około 1910 roku. Działka o powierzchni
Sprzedam dom-14 kwietnia
Dom w Komarnie
Szukasz domu za miastem??? Proponujemy zatem nieruchomość z potencjałem w miejscowości Komarno(10km od JG) Dom o powierzchni całkowitej ok 450m2 i użytkowej 130 m2 usytuowany na działce 844m2
Sprzedam dom-12 kwietnia
© 2002-2026 Highlander's Group